您所在位置: 首页 betway88体育 教学活动

教学活动

建筑与设计学院|《装饰材料与构造工艺》项目化教学成果线上展示来啦!

发布日期: 2023-11-06

《装饰材料与构造工艺》课程|项目化教学成果线上展示

开课院系:建筑与设计学院/建筑室内设计专业

授课教师:涂贞斐

授课对象:22级1-3班

授课周期:1-8周

 

课程介绍

《装饰材料与构造工艺》课程是建筑室内设计专业必修的核心课程。本课程作为入门设计师必须掌握的一门重要课程,需要牢固掌握各类装饰材料的性能及施工的工艺理论知识和实践知识。掌握装饰材料的种类、性能及施工的工艺方法和程序。

专业教学

第一节课先和同学们一起剖析课程的“What、Why、How“,——引入2w-h教学法:这门课是什么;为什么要学这门课;这门课怎么应用。经过一轮探讨,明确课程认知、清晰学习目标、解决问题核心、激发兴趣增强学习主动性,开启新阶段的学习:

一、课程安排

第一阶段:讲授、调研阶段

1. 课堂讲授材料概述、实地调研参观

2. 选定研究原型进行资料查阅,简述特点、材料信息、材料对应加工工艺,视频、图解形式汇报。

第二阶段:工艺实践阶段

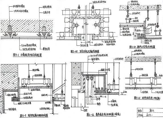
对应五大板块施工工艺的不同技术,了解工艺原理,掌握基础操作流程步骤,绘制相应工艺节点详图,进行工艺实践。要求:制作对应不同工艺的样块。

第三阶段:工艺延展阶段

在工艺实践基础上,拓展工艺的应用可能,延展工艺对于材料属性的影响,思考在设计中的应用可能。要求:绘制工艺综合表现的设计施工图。

二、教学思路

《装饰材料与构造工艺》主要对材料和工艺的定义内容,先进技术以及如何制作、操作步骤等,深入分析以及精炼总结。从《装饰材料与构造工艺》课程的教学现状出发,室内设计教研室分析目前的教学症结,以项目化教学为切入点进行课程教学改革,探索适合本课程的教学装饰材料与模式,促进教学质量的提高,培养适应市场需求的设计人才,课程具备很强的实践性。本课程采用理论讲授、项目实训教学与实地考察相结合的方式进行。理论部分引入案例,通过实践这个环节更深入的理解材料与工艺的理论知识。应用部分引入项目演练,在实训过程中学会变通和反思,更好地掌握装饰材料的性能、种类及施工工艺的方法和流程。

整体设计思路基于学生为主体,以工作过程为主导,项目化教学为路径,教、学、练、考围绕典型案例展开。

在进行了八周的课程学习后,同学们能够掌握各类材料的性能及施工的工艺理论和实践知识不仅详细记录了课程笔记,最后都进行了个人实训项目1-13的作品集汇报。

学生部分优秀成果展示

三、思政元素

1、培养学生的专业行业价值观和行业发展认同感、使命感。

2、培养学生理论指导实践、实践验证理论的知行合一的思想原则和思维习惯。

3、指导学生积极引进中国文化元素为载体,进行项目设计实施,融入爱国、敬业、奉献精神,使学生了解材料与工艺在现代工业体系以及大国工匠中的价值定位和重要作用。

4、将学生培养成基础知识扎实、专业实践能力强、职业素养高的人才。

联系方式

招生热线
020-87470138 020-22693188 020-22693288
地址:广州市白云区太和镇穗丰水均田路363号
校长邮箱:gzdonghuacollege@163.com
党委信箱:gzdhdw@163.com
  • 官方公众号
  • 学院二维码
Baidu
map